Vi bygger om inom Gymnasiebyn
Det som tidigare varit kontorslokaler för kommunal verksamhet byggs nu om för att bli skollokaler.
Kort fakta om projektet
Förvaltningshuset, en del av gamla sjukhuset beläget inom kvarteret Kungsfågeln har varit kontor för kommunala verksamheter men ska nu byggas om till skollokaler.
Ombyggnaden innebär att flera verksamheter som redan finns i Gymnasiebyn, ska flytta till Kungsfågeln för att möjliggöra utökning av verksamheterna där.
Till Kungsfågeln ska bland annat anpassat gymnasium och idrottsprogrammet flytta från kvarteret Örnen, samt elprogrammet från Kungsfågeln.
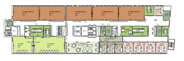
Här bygger vi

Tidplan
- Hösten 2026: Projektet kommer av vara klart så att verksamheten kan starta sin verksamhet höstterminen 2026.
- Våren 2025: Rivningsarbeten inomhus har påbörjats
Bilder
Förstora bildenExempelskiss över klassrum

Idéskiss med nya entréer
Mer om projektet
I entréplan kommer det att finnas tillagningskök med matsal. Projektet har arbetat med att försöka återbruka det som är möjligt på plats främst genom att försöka anpassa den nya planlösningen så att WC kan bevaras på sin nuvarande plats, återbruka kök till exempel personalrum, innerdörrar och glaspartier där det går.
Huset får en ny planlösning där kontoren rivs för att ge plats åt klassrum och grupprum, uppehållsytor för elever. Även tekniken får en upprustning då luftmängder i ventilationen behöver utökas.
Idag har rivningsarbete såväl invändigt som utvändigt påbörjats. Utvändigt har marken blivit avtäckt och den gamla utrymningstrappan demonterats. Inom kort kommer tillbyggnaden av ett nytt miljörum samt montering av bygghiss att ske. Båda på gaveln som vetter mot kvarteret Örnen.
De flesta arbeten är invändiga men utvändigt kommer det att synas att vi anpassar för ny verksamhet genom att ett nytt miljörum med godsmottagning för köket kommer att byggas samt en ny entré för anpassat gymnasium.
Huset upprättades på 60-talet och byggdes ut på 80-talet. Efter detta har delar av huset rivits och det kvarvarande har renoverats i omgångar. Utmaningarna blir således många, dels vad gäller inventering av befintliga material, dels de olika konstruktionstyperna i huset.
Avtal är tecknat med PEAB som tillsammans med sina underentreprenörer kommer att genomföra ombyggnaden.
Kontakt

Luleå kommuns kundcenter
Öppettider telefon: Måndag–fredag: 08.00–17.00.
lulea.kommun@lulea.se0920-45 30 00
Sidan uppdaterades den 27 februari 2026
